EWI (below ground) Recessed Plinth and Periscopic Ventilation [Version ID #179]

Author details

Original Author:Admin Organisation:

Detail summary

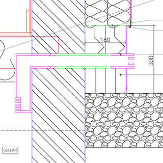
A variation on an EWI detail for periscopic ventilation to a below ground cellar, with a recessed plinth, where EWI stops at ground level over a drainage layer. Perimeter insulation to edge of ground floor beneath external wall insulation. Ventilation air brick and sleeve required where existing air-bricks to sub-floor void will be blocked by floor insulation works. Periscopic vent should ensure continued clear air-path to sub-floor, to ensure adequate ventilation. Insulation to suspended timber floor.

Technical description

Section detail. EWI to ground level detail, with insulation past ground level, to just below ground. Junction of woodfibre to below EWI: 400 - 200mm external perimeter insulation suitable for below ground use + drainage layer. Persicopic ventilation to ventilate below ground cellar/basemen for use with internal suspended timber floor.

Perimeter insulation suitable for below ground use and drainage layer. To BS EN 13164-2012.

Air bricks in external walling: To BS 493-1995, Class 1. Gratings/ Ventilators in internal walling to BS 493, Class 2. Pipe sleeves: Extend through full thickness of wall or floor, position accurately. Generally: clearance around pipes: should be 20 mm (maximum) or diameter of service, whichever is the lesser.

Rainwater drainage: please refer to approved document H, section H3, rainwater drainage for guidance. Drainage layer: Granular infill free from excessive dust, well graded, all pieces less than 75mm in any direction, minimum 10% fines value of 50 kN when tested in a soaked condition to BS 812-111-1990. In one layer no more than one of the following: Crushed rock (other than argillaceous rock) or quarry waste with not more binding material than is required to help hold the stone together/ Crushed concrete, crushed brick or tile, free from plaster, timber and metal. / Crushed non-expansive slag / Gravel or hoggin with not more clay content than is required to bind the material together, and with no large lumps of clay. /Well-burned non-plastic colliery shale. /Natural gravel. /Natural sand.

Care should be taken to ensure air-tightness. Seal all service penetrations through EWI and existing wall. Lap and tape all membranes around edges of EWI system.

All insulation to be continuous to avoid thermal bridging.

Preparation of external wall: Remove any existing loose material and prepare in accordance with manufacturer's requirements.

Any alterations to drainage and other fixtures, or work to prepare the substrate, to be agreed with contract administrator prior to work being undertaken. Prior to start on site inspect the form and condition of the structural substrate; institute repairs and/ or additional works necessary to make the substrate suitable to receive EWI system.

Parts list

  • Air Bricks And Wall Ventilators [FL011c]

    Plastics air brick, colour to match existing finishes, cranked sleeve to suit and wall ventilator. Re-use existing airbricks where possible. \ Work Size: As existing brick/blockwork. \ Outer Face Position: Flush with wall face. \ Spacing: Maximum 2m centres to provide 1500mm2 of clear opening per 1m run of external wall; unless otherwise agreed.

    Contractors choice.

  • External Wall Insulation (Woodfibre), rendered finish [EW01]

    For use on solid and hard to treat cavity walls. Composite woodfibre board. UdiTherm SK back board, Diffutherm NF (T&G, renderable) top board. \ Fixed mechanically to substrate in accordance with manufacturers recommendations. \ Base Coat - levelling on substrate: 90% contact required around edge of boards between board and substrate to prevent thermal bypass. If substrate is very uneven, use base-coat material around edge of board to achieve contact. \ Thermal conductivity: 0.045W/mK. GWP 0.

    Unger \ www.unger-diffutherm.de \ Reference: UdiFRONT. \ Render: UDI Perl

  • Woodfibre EWI adhesive [EW01]

    Adhesive for use at joint between perimeter/ plinth insulation and external wall insulation.

  • Woodfibre Insulation Between Floor Joists [FL01]

    Woodfibre Insulation. \ Thickness 200mm. \ Friction fit between joists to ensure air-tightness- cut batts approx 20mm wider than opening between joists. Supported by Polyester webbing drawn underneath insulation at approx 600mm centres, fixed to joists.

    Unger \ www.unger-diffutherm.de \ Reference: UdiFLEX

  • External Perimeter Floor Insulation [FL01]

    Extruded Polystyrene (XPS) to BS EN 13164. Suitable for below ground conditions and for application of render. \ Thickness as external wall insulation. Depth: 600mm below internal floor level or to footings. Tight butt joints. \ Thermal conductivity: 0.033W/mK. GWP<5.

    BASF \ http://www.plasticsportal.net/wa/plasticsEU~en_GB/portal/show/content/literature/styrodur \ Reference: Styrodur 2800C.

Revisions

  1. Admin - 2015-04-29 11:50:29

    New contact details added for EW01 and FL03. General formatting changes. DWG uploaded.

    |
  2. Admin - 2015-03-30 12:32:57

    Title amended.

    |
  3. Admin - 2015-03-27 16:30:09

    Preview image and .pdf file updated.

    |
  4. Admin - 2015-03-24 10:48:48

    General re-formatting. Introduction expanded. Technical description updated with additional notes, approved document links and installation sequence. Parts list updated with suppliers codes. Double sided tape added to parts list.

    |
  5. Admin - 2015-03-13 09:46:53 [Displayed version]

    Introduction, technical description, revised and expanded. Parts list updated.

    |
  6. Admin - 2015-02-27 15:54:44

    Version 3- Title updated

    |
  7. Admin - 2015-02-27 15:53:31

    Title updated

    |
  8. Admin - 2015-02-27 15:52:57

    Version 1

    |
Leave a comment

Discussion

  1. For those who have seen the Earth from space, and for the hundreds and perhaps thousands more who will, the experience most certainly changes your perspective. The things that we share in our world are far more valuable than those which divide us.

    User name

Leave a comment


Feedback

A total of 14 users have left feedback about this detail.

Share your thoughts about this detail with other users:

Feedback summary

  • 80% of users found this detail easy to implement.
  • 50% of users found it easy to source skills for this detail.
  • 60% of users found this detail hard to understand.
  • 100% of users found the overall cost for this detail to be low.
  • 90% of users found materials for this detail easy to source.